// Legna · Piano Rotativo
Tondo
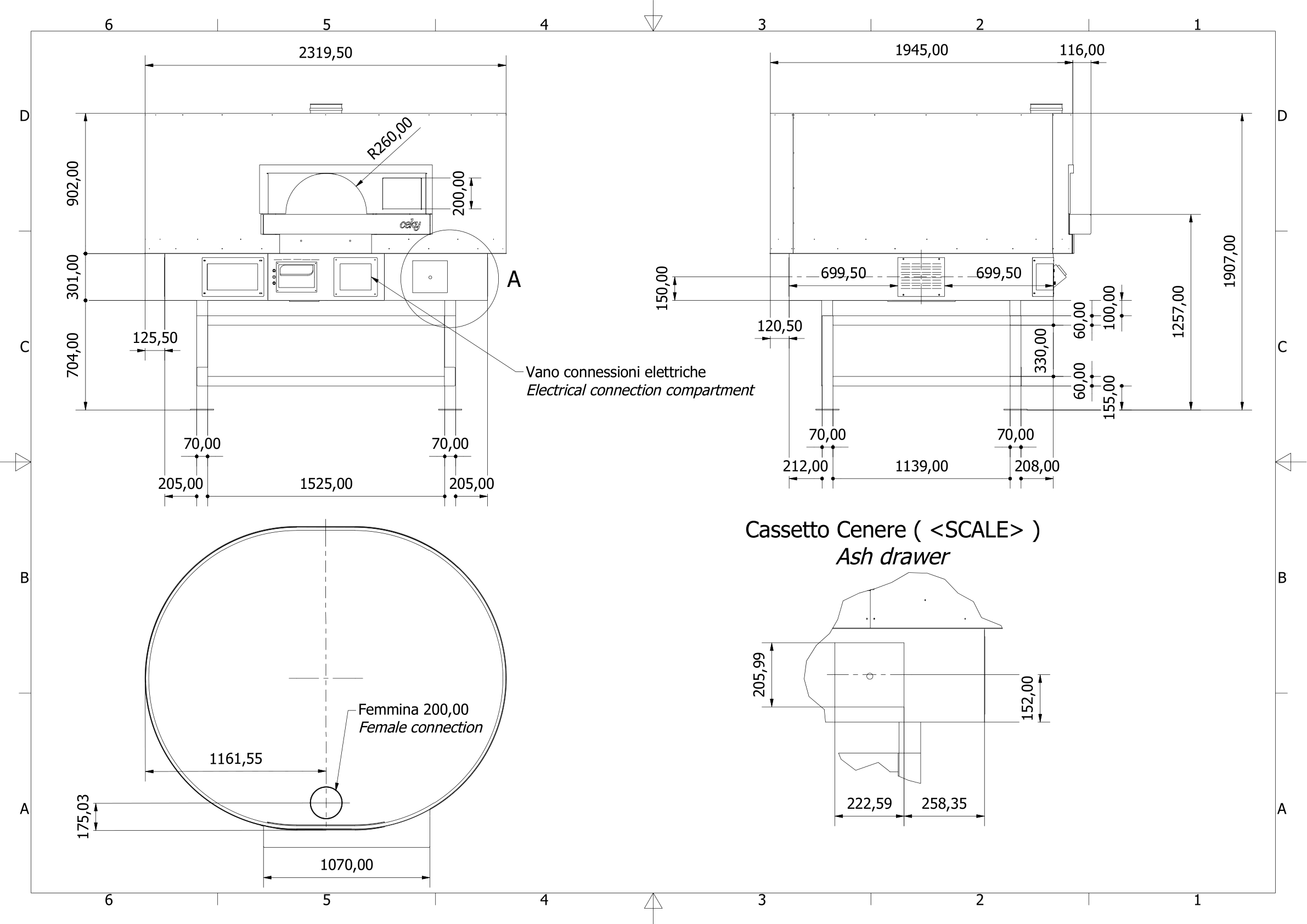
150 cm Ø interno
Forma cilindrica, con piano rotativo
Cod. FR15SW
Certificato AVPN
Associazione Verace Pizza Napoletana

Piano refrattario 60 mmIl fascino della legnaMattoni refrattari selezionati
Perché scegliere questo forno
Forma cilindrica, con piano rotativo
Il piano ruota automaticamente a velocità regolabile. Cottura uniforme senza lato radiante.

Caricamento modello
Naturale
Trascina · Pizzica
Il modello 3D rappresenta il design del forno. Le dimensioni esatte variano in base alla misura — vedi la scheda tecnica.
Specifiche tecniche
Capienza
13pizze contemporanee**pizze da 30 cm di diametroProduzione
Grandi produzioniForni a Legna
LegnaTecnologia piano
Piano RotativoIngombro
195x235 cmPeso
3,000 kgConfigura il tuo forno
Ogni forno Ceky è personalizzabile: colori, rivestimenti in mattoni o mosaici, accessori e dimensioni su misura. Il nostro team commerciale ti accompagna nella configurazione finale.
Rivestimenti disponibili
Palladiane e mosaici su tutto il forno
Altre misure disponibili — Tondo
Vedi tutteDomande frequenti
Hai domande su questo forno?
Stessa linea

