// Linea MX · Piano Rotativo
Cupola MX
150 cm Ø interno
Cupola alta, doppia combustione gas + legna, forte impatto visivo
Cod. FR15GH

Perché scegliere questo forno
Cupola alta, doppia combustione gas + legna, forte impatto visivo
Il piano ruota automaticamente a velocità regolabile. Cottura uniforme senza lato radiante.

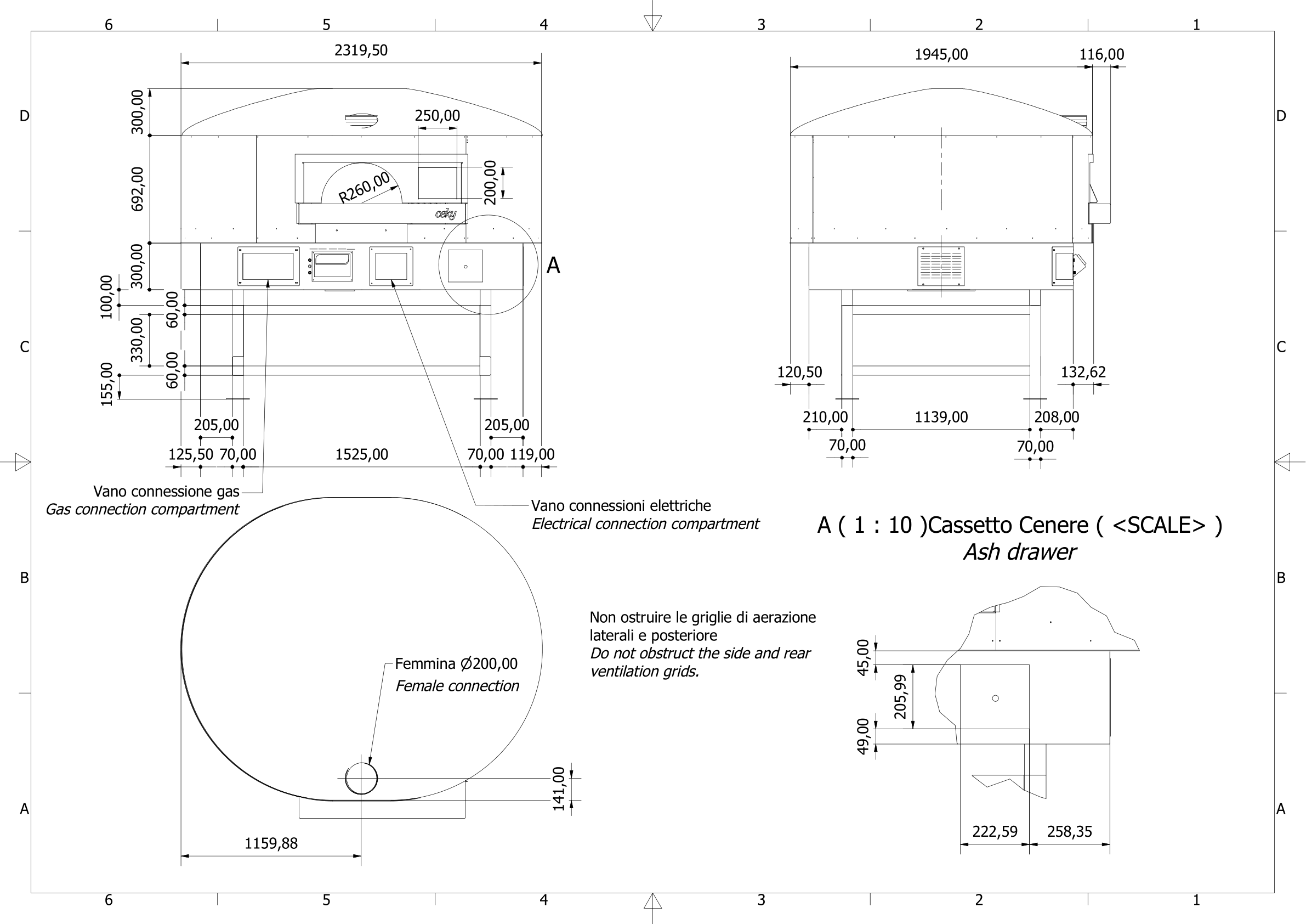
Il modello 3D rappresenta il design del forno. Le dimensioni esatte variano in base alla misura — vedi la scheda tecnica.
Specifiche tecniche
Configura il tuo forno
Ogni forno Ceky è personalizzabile: colori, rivestimenti in mattoni o mosaici, accessori e dimensioni su misura. Il nostro team commerciale ti accompagna nella configurazione finale.
Rivestimenti disponibili
Palladiane e mosaici su tutto il forno
Altre misure disponibili — Cupola MX
Vedi tutteDomande frequenti
Hai domande su questo forno?
Stessa linea

