// Legna · Piano Rotativo
Cupola
150 cm Ø interno
Forma a cupola alta, elemento scenografico di forte impatto visivo
Cod. FR15GW
Certificato AVPN
Associazione Verace Pizza Napoletana

Piano refrattario 60 mmIl fascino della legnaMattoni refrattari selezionati
Perché scegliere questo forno
Forma a cupola alta, elemento scenografico di forte impatto visivo
Il piano ruota automaticamente a velocità regolabile. Cottura uniforme senza lato radiante.

Caricamento modello
Naturale
Trascina · Pizzica
Il modello 3D rappresenta il design del forno. Le dimensioni esatte variano in base alla misura — vedi la scheda tecnica.
Specifiche tecniche
Capienza
13pizze contemporanee**pizze da 30 cm di diametroProduzione
Grandi produzioniForni a Legna
LegnaTecnologia piano
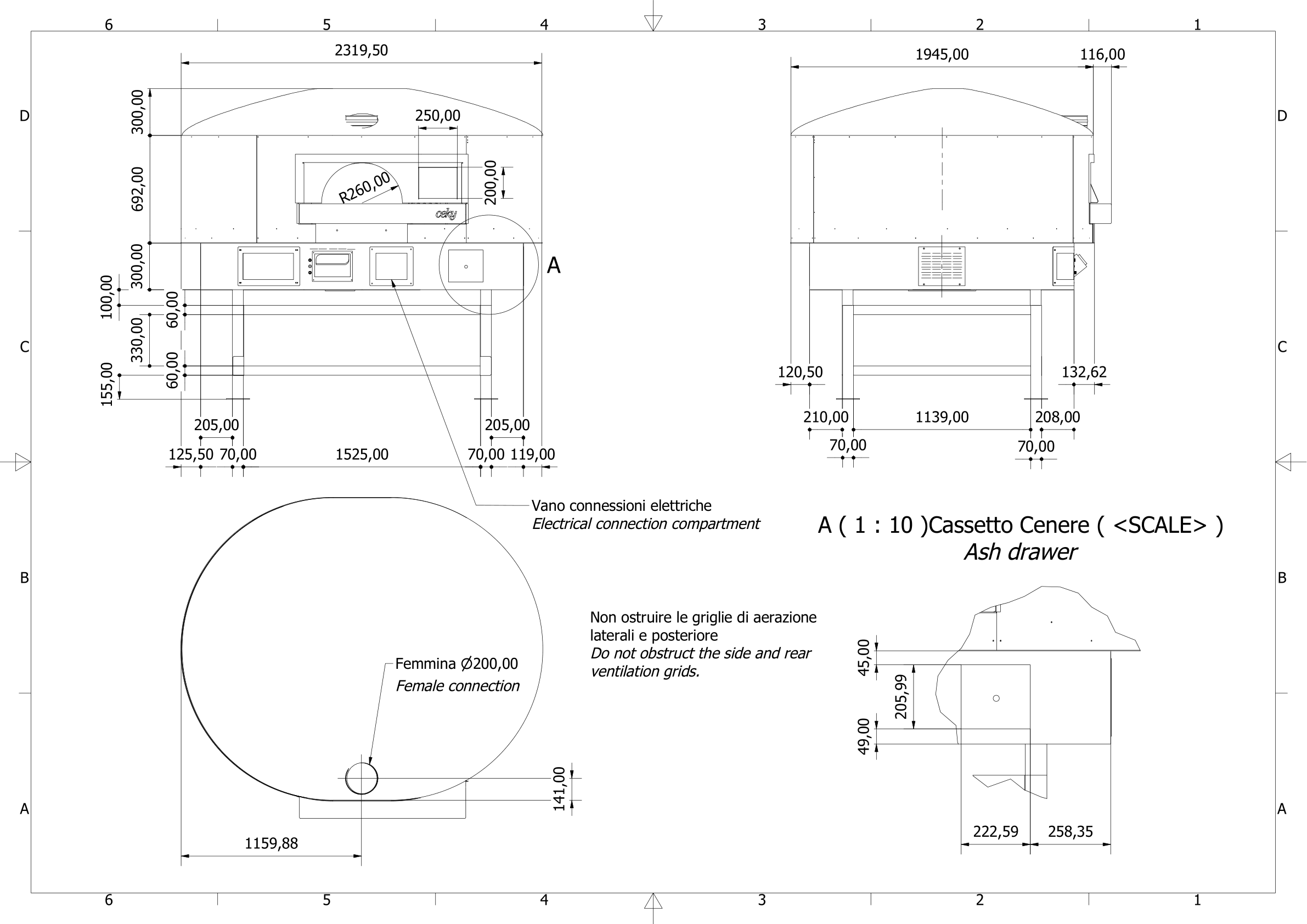
Piano RotativoIngombro
195x235 cmPeso
3,000 kgConfigura il tuo forno
Ogni forno Ceky è personalizzabile: colori, rivestimenti in mattoni o mosaici, accessori e dimensioni su misura. Il nostro team commerciale ti accompagna nella configurazione finale.
Rivestimenti disponibili
Palladiane e mosaici su tutto il forno
Altre misure disponibili — Cupola
Vedi tutteDomande frequenti

